怎么用CAD机械版制作孔表
在机械制图过程中,孔表的制作往往是设计人员最耗时、也最容易出错的环节之一。传统的孔位标注需要手动测量、逐个填写坐标,不仅效率低下,还容易因人为疏漏导致图纸与实物不符,进而影响加工精度。CAD机械版内置的孔表功能,能够一键识别图面中的各类孔特征,自动提取孔径、坐标及数量信息,并生成标准化的孔位图表,彻底告别繁琐的手动标注。接下来让我们一起看看吧。
问题描述:
CAD机械版如何制作孔表?
步骤指引:
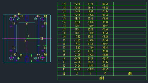
1.点击菜单【机械-符号标注-孔特征图表】(【KB】快捷键);
2.根据命令提示,设置原点位置,选择孔对象等,即可生成孔表,包括孔大小和位置坐标等信息。

以上就是本文的全部内容,若想了解更多高效的CAD插件可在评论区留言!











